Voor dit project staat een karakteristieke Franse woning centraal, waarbij authenticiteit en functionaliteit samenkomen. In het tekenwerk zijn de bestaande elementen zorgvuldig in kaart gebracht en vertaald naar een helder en kloppend ontwerp. Met respect voor de originele stijl, verhoudingen en sfeer vormt dit tekenproject de basis voor renovatie, aanpassing of toekomstig gebruik van de woning.

Garage

Plattegronden

Zijgevels

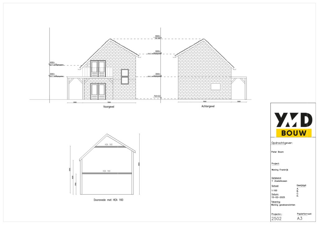
Voor- en achtergevel

× Snel contact? Dat kan hier via whatsapp!